Dodaj produkty podając kody
- Tece stelaż podtynkowy do wc Tece base box 9370000
TECEbox - spłuczka podtynkowa ze spłuczką Uni
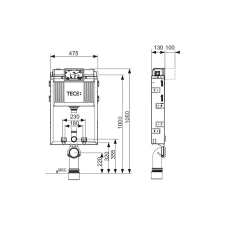
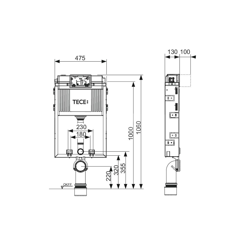
Stelaż WC TECEbox z przodu spłuczką Uni o wysokości montażowej 1060 mm przeznaczony jest do montażu w ścianie w zabudowie mokrej przed ścianą murowaną. Zestaw zawiera spłuczkę Uni uruchamianą z przodu, bezpieczny zbiornik z tworzywa sztucznego odpornego na uderzenia, kompletnie zmontowaną i zaplombowaną spłuczkę oraz przyłącze spłuczki z gwintem wewnętrznym 1/2".
Zbiornik ma pojemność 10 litrów, a standardowa ilość wody do spłukania wynosi 6 litrów. Istnieje możliwość ustawienia ilości wody do spłukania na 4,5/7,5 lub 9 litrów, a przy użyciu płytki spłukującej podwójnego spłukania 3 litrami wody, pozostała ilość wody jest używana do natychmiastowego spłukania czyszczącego. Izolacja przeciw skraplaniu wody umożliwia stosowanie przycisków spłukujących do WC, elektroniki spłukującej i armatury WC. Możliwe jest spłukiwanie jedną ilością wody lub dwoma ilościami w zależności od zastosowanego przycisku spłukującego. Produkt posiada certyfikację zgodną z normą EN 14055 oraz grupę akustyczną 1 według DIN 4109. Zawór hydrauliczny napełniający jest cichy.
Stelaż składa się z ocynkowanej ramy stalowej, dwóch szpilek mocujących i nakrętek M12 o rozstawie montażowym 180 lub 230 mm, kolana odpływowego do WC DN 90 z adapterem przyłączeniowym DN 90/100 z PP z możliwością montażu poziomego (bez kolana odpływowego).














