Dodaj produkty podając kody
Dodaj plik CSV
Wpisz kody produktów, które chcesz zbiorczo dodać do koszyka (po przecinku, ze spacją lub od nowej linijki).
Powtórzenie wielokrotnie kodu, doda ten towar tyle razy ile razy występuje.
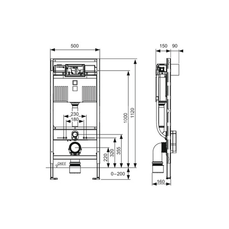
TECEprofil - stelaż podtynkowy do WC ze spłuczką podtynkową uruchamianą z przodu, do uniwersalnego podłączenia toalety myjącej, wysokość 1120 mm
Moduł WC z instalacją przycisku spłukującego „easy fit” i rurką instalacyjną do podłączenia elektronicznych toalet myjących. Do mocowania na kształtownikach stalowych TECEprofil lub do montażu w ścianach z profili metalowych lub drewnianych oraz jako ścianka przednia lub moduł narożnikowy.
Spłuczka Uni uruchamiana z przodu:
Bezpieczny zbiornik z tworzywa sztucznego odpornego na uderzenia, przetestowany zgodnie z normą EN 14055
Kompletnie zmontowana i zaplombowana spłuczka.
Przyłącze spłuczki z gwintem zewnętrznym R 1/2", kompatybilne z szybkimi adapterami
Pojemność zbiornika 10 litrów; standardowe ustawienie ilości spłukiwanej wody 6 litrów, opcjonalnie możliwość ustawienia ilości spłukiwanej wody 4,5/7,5/9 litrów; w systemie spłukiwania dwoma ilościami wody możliwość spłukiwania 3 litrami; pozostała ilość wody do natychmiastowego spłukiwania czyszczącego.
Izolacja przeciw skraplaniu wody
Do przycisków spłukujących TECE, elektroniki spłukującej i armatury WC
Spłukiwanie jedną lub dwoma ilościami wody
Montaż przycisków spłukujących „easy fit”
Cichy hydrauliczny zawór napełniający, grupa akustyczna 1 według DIN 4109
Rama stelaża:
Samonośna, malowana proszkowo
Dwie szpilki mocujące i nakrętki M 12
Kolano odpływowe do WC DN 90 z adapterem przyłączeniowym DN 90/100, wykonane z PP
Adapter przyłączeniowy odpowiedni także do montażu poziomego
Kpl. Kroćcow przyłączeniowych wraz z zatyczkami, do montażu ceramiki
Puszka przyłączeniowa z szablonem montażowym do uniwersalnego wykonanie przyłącza elektrycznego i wodnego dla toalety myjącej (sprawdź pozycję przyłącza zimnej wody)
Możliwość podwyższonego mocowania ceramiki na wysokości siedzenia 48 cm zgodnie z niemiecką normą DIN 18040 (DIN 18040: Budownictwo bez barier – część 1: Obiekty użyteczności publicznej).
Marka
Symbol
J19300379
Rodzaj towaru
Podtynkowe systemy instalacyjne
EAN
4027255085770
Kod producenta
9300379
Strona www producenta
www.tece.pl
Zapytaj o produkt
Napisz swoją opinię






















