Dodaj produkty podając kody
Dodaj plik CSV
Wpisz kody produktów, które chcesz zbiorczo dodać do koszyka (po przecinku, ze spacją lub od nowej linijki).
Powtórzenie wielokrotnie kodu, doda ten towar tyle razy ile razy występuje.
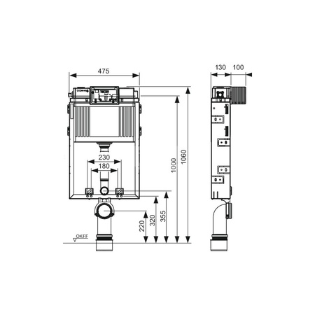
Moduł WC z instalacją przycisków spłukujących „easy fit”. Do montowania w murowanej ściance przed ścianą właściwą.
Spłuczka Uni uruchamiana z przodu:
Bezpieczny zbiornik z tworzywa odpornego na uderzanie, przetestowany zgodnie z normą EN 14055
Kompletnie zmontowana i zaizolowana spłuczka.
Przyłącze spłuczki z gwintem zewnętrznym R 1/2", kompatybilne z szybkimi adapterami
Pojemność zbiornika 10 litrów; standardowe ustawienie ilości spłukiwanej wody 6 litrów, opcjonalnie możliwość ustawienia ilości spłukiwanej wody 4,5/7,5/9 litrów; w systemie spłukiwania dwoma ilościami wody możliwość spłukiwania 3 litrami; pozostała ilość wody do natychmiastowego spłukiwania czyszczącego.
Izolacja przeciw skraplaniu wody
Do przycisków spłukujących TECE, elektroniki spłukującej i armatury WC
Możliwość zastosowania spłuczki do spłukiwania pojedynczego lub dwoma ilościami wody
Instalacja przycisków spłukujących „easy fit”
Tunel montażowy do otworu rewizyjnego może zostać skrócony bez użycia narzędzi
Cichy hydrauliczny zawór napełniający, grupa akustyczna 1 według DIN 4109
Rama stelaża:
Ramka stalowa, galwanizowana, dwie szpilki mocujące z nakrętkami M 12
Kolano odpływowe do WC DN 90 z adapterem przyłączeniowym DN 90/100, wykonane z PP
Adapter przyłączeniowy odpowiedni także do montażu poziomego
Kpl. Króćców przyłączeniowych wraz z zatyczkami, do montażu ceramiki
Marka
Symbol
J19370300
Rodzaj towaru
Podtynkowe systemy instalacyjne
EAN
4027255085916
Kod producenta
9370300
Strona www producenta
www.tece.pl
Zapytaj o produkt
Napisz swoją opinię













